Proboštov
Proboštov

Východní strana (s mečem) Počet písmen
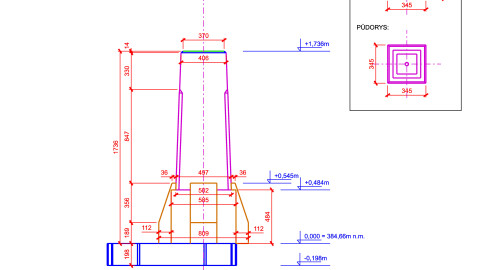
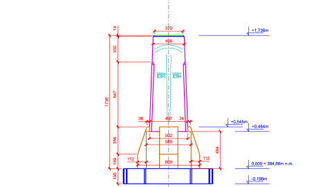
Vrcholová část pomníku:
Gewidmet von der freiw Feuerwehr 28
und der Gemeinde Proboscht 23
Překlad:
Věnováno sborem dobrovolných
hasičů a obcí Proboštov
Základna pomníku:
Unseren Helden (překlad: Našim hrdinům) 13
1914 – 1918 9
Dole vlevo:
(Krombholz (volný překlad: postavil Krombholz)
BODENB.)
Jižní strana (základna pomníku)
Vermißt (překlad: nezvěstní) 7
Eibicht Josef 12
Paul Wenzel 10
Philipp Franz 12
Raschel Heinrich (s – vytesán jiný typ písmene s) 15
Jebautzke Josef 14
Západní strana (základna pomníku)
Errichtet 1922 (překlad: postaveno 1922) 13
Severní strana (základna pomníku)
Gefallen und gestorben (překlad: padlí a zemřelí) 20
Guth Josef 9
Hernich Wilibald 15
Röllig Emil 10
Strohschneider Julius (s – vytesán jiný typ písmene s) 20
Heischel Heinrich 16
Raschel Heinrich 15
Röllig Josef 11
Röllig Rudolf 12
Beutel Robert 12
Dörner Wenzel 12
Thiele Wenzel 11
Celkový počet písmen: 319
Výška písmen u jmen: velká 5 cm, malá 3 cm
50°37'35.193"N, 14°9'3.352"E
